
128 Millwood Road Lavon, TX 75166
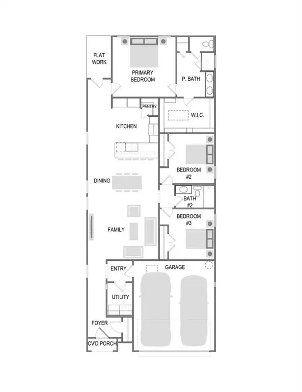
3 Beds
2 Baths
1,657 SqFt
Open House
Sat Apr 18, 12:00pm - 4:00pm
Sun Apr 19, 12:00pm - 4:00pm
Tue Apr 21, 12:00pm - 4:00pm
Thu Apr 23, 12:00pm - 4:00pm
UPDATED:
Key Details
Property Type Single Family Home
Sub Type Single Family Residence
Listing Status Active
Purchase Type For Sale
Square Footage 1,657 sqft
Subdivision Nicholson Ranch
MLS Listing ID 21176473
Style Contemporary/Modern,Craftsman
Bedrooms 3
Full Baths 2
HOA Fees $650/ann
HOA Y/N Mandatory
Year Built 2026
Lot Size 4,599 Sqft
Acres 0.1056
Lot Dimensions 40x115
Property Sub-Type Single Family Residence
Property Description
Location
State TX
County Collin
Community Community Pool, Curbs, Jogging Path/Bike Path, Playground, Sidewalks
Direction Follow 14th St, W Farm To Market 544 and TX-78,S State Hwy 78 N to Lavon. Take McClendon Rd and turn right on Co Rd 483 to E Lavon Trl Pkwy
Rooms
Dining Room 1
Interior
Interior Features Cable TV Available, High Speed Internet Available, Open Floorplan, Pantry, Walk-In Closet(s)
Heating Central
Cooling Ceiling Fan(s), Central Air
Flooring Carpet, Luxury Vinyl Plank, Tile
Appliance Dishwasher, Disposal, Electric Cooktop, Electric Oven, Tankless Water Heater
Heat Source Central
Laundry Electric Dryer Hookup, Utility Room, Full Size W/D Area, Washer Hookup
Exterior
Exterior Feature Rain Gutters, Lighting, Private Yard
Garage Spaces 2.0
Fence Back Yard, Wood
Community Features Community Pool, Curbs, Jogging Path/Bike Path, Playground, Sidewalks
Utilities Available City Sewer, City Water
Roof Type Composition
Total Parking Spaces 2
Garage Yes
Building
Story One
Foundation Slab
Level or Stories One
Structure Type Brick,Rock/Stone,Siding
Schools
Elementary Schools Nesmith
Middle Schools Community Trails
High Schools Community
School District Community Isd
Others
Virtual Tour https://www.propertypanorama.com/instaview/ntreis/21176473







